Ford Transit Bookmobile
The new Ford Transit is a fully equipped mobile library unit with two separate entry points—a heavy-duty electric door for ambulatory access and a wheelchair-accessible entrance with an 800 lb commercial lift—for maximum accessibility and throughput. It features LED lighting, Acore shelving and book carts, a circulation desk, bench seating with storage, and climate control with roof AC. Standard amenities include a 4kw Onan generator, 50 amp shore power, multiple outlets, an eyewash station, bathroom facilities, and durable Altro faux wood flooring. The Ford Transit mobile library is a versatile, accessible, and reliable solution for bringing library services directly to communities.
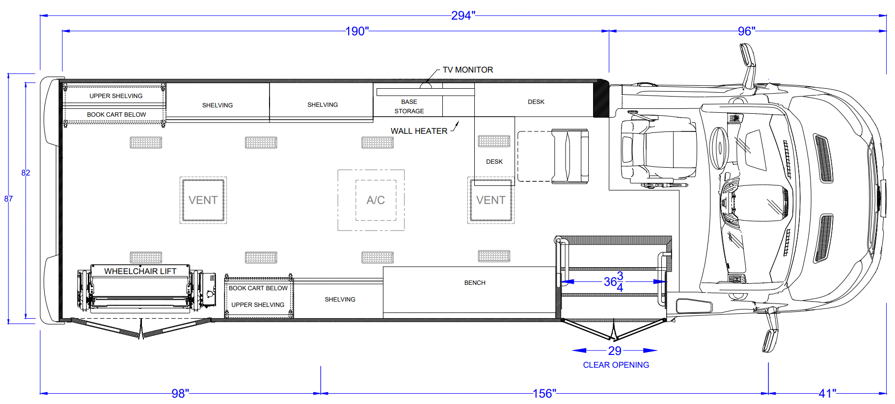
Check Floor Plan
Vehicle Description
Standard Chassis Equipment
- Ford Transit 3.5L EcoBoost Gas Engine
- 11,000 # GVWR
- 10‐Speed Automatic Transmission
- 205/75R16C BSW All Season Tires
- Dual Batteries
- Tilt & Cruise
- Fuel Tank 25 Gallon
- 50 State Emissions
- Engine Block Heater
- 3.73 Limited Slip Axle Ratio
- Radio ‐ Sync3, 4" Screen w/6 Speakers
- Cruise Control
- Daytime Running Lamps
Interior Equipment
- LED Light Strips behind shelving/cabinets
- Base Locking Cabinet
- Circulation Desk
- Acore Shelving Book Carts
- Acore Shelving Book Shelves
- Eye Wash Station
- TV Monitor
- Bench Seating W/ Under Storage
- Legal Passenger Jump Seat
Standard Body Equipment
- Welded Tubular Steel Cage
- Drive Shaft Guards
- Rear Mud Flaps
- Re‐Route Exhaust to Driver's Side
- Steel Gage Primed with Rust Inhibitor
- White Fiberglass Gel Coat Exterior
- LED Interior and Exterior Lighting
- Heavy Duty Steel Black Powder‐Coated Rear Bumper
Additional Chassis Equipment
- Wheel Liners Stainless Steel Ford Transit w/ Valve Stem Extensions
- Full Wheel Alignment ‐ Castor & Camber
Climate Control
- ﴾2﴿ Roof Vent ‐ Fantastic 4000 Series Fan 14"
- Roof A/C 15,000 BTU
Entrances
- Bus Style Heavy Duty Electric Entrance Door For Ambulatory Entrance
- Exterior Key Switch For Ambulatory Entrance
- Anti Skid Entrance Steps
- High Visibility Yellow Step Nosing at Ambulatory Entrance
- Medical Grade Stainless Steel Assist Rails
- Wheelchair Accessible Entrance Into Exam Room
- Wheelchair Accessible Entrance Features Commercial Grade Wheelchair Lift With Remote Pendant
- 800 Lb Certified Wheelchair Lift with Safety Belt
Electrical
- Converter
- ﴾2﴿ Interior Switch for Dome Lights
- ﴾2﴿ 12v Wire Circuit ‐ To Wire Under Cabinet Lighting
- OEM Back‐Up Camera
- ﴾2﴿ Additional 4" x 11" LED Lights
- ﴾5﴿ 110v Outlet with Faceplate ‐ 110v Duplex Outlet
- Fully Enclosed Pullout Battery Tray
- 50 Amp Shore Power Outlet w/ 25' Cord
- Pull 110v 12 Gauge SL Cable ‐ Coiled Up to Front Bulkhead Area
- 110v Exterior GFCI Outlet
- Replace Standard Dome Lights with 4" x 11" LED Light
Exterior
- 4kw Cummins Onan Commercial Quiet Generator w/ Auto Start
- Generator Enclosure Kit
- Generator Prep Kit
- Running Board ‐ Wide Diamond Plate ﴾Driver's Side﴿
Interior
- Steel Backer Package 10"W 14 GA
- 24 Gallon Black Water Tank
- Stanchion Pole w/Assist R.H. Entry
- Entry Door Stanchion & Assist Rail
- Smooth White Interior Walls with Gray Vinyl Trim
- Advantech Subfloor
- Exchange for Yellow Step Nosing
- Exterior Skirt Storage 36"W 19"D 14.25" High Box with Door
- Storage Compartment ‐ Over Driver
- Johns Manville Insulation Upgrade
- Altro Faux Wood Floor ﴾Iron Bamboo﴿
Safety
- Back Up Alarm
- LED Brake Light ‐ Center High Mount
Customers have to say:
FAQ
Do we need a Commercial Driver License (CDL) to drive a TESCO Specialty Vehicle?
Our Vehicles do not require a special drivers license. They are designed to be under CDL requirements of a Gross Vehicle Weight Rating of 26,000lbs or less.
Are your vehicles commercial grade?
Our vehicles are NEVER built from retrofitted RV’s which are not designed to hold up to the operational use of medical clinics. Each TESCO Specialty Vehicles is custom built for its commercial application, with steel body construction directly to the chassis. We welcome the opportunity to show you the difference and review with you our manufacturing process.
Where do you ship your vehicles?
We ship our vehicles to every state in the US and have the capabilities to ship internationally.
Do you offer Warranty Coverage?
Yes. Each vehicle comes with a 3 to 5-year warranty for the chassis and body. Please contact us to learn more about our various warranty coverages.
What do I need to consider when starting a mobile unit program?
There are several key strategic areas to consider. At TESCO we offer a free consultation with our Director of Specialty. Our director has a clinical background and years of healthcare service line development, including real life experience with deploying a mobile unit program. We will be able to offer guidance on market research, setting a budget, design, and other strategic operational considerations. Please feel free to schedule appointment here.
How do we power our mobile unit?
Every unit comes with a commercial grade generator and shore power capabilities. Shore power can provide the unit access to power at your parking locations to run your mobile unit electrical systems without use of generator. Please schedule a call with us to learn more about our custom electrical solutions.
What training and support is offered?
We offer onsite training at delivery of your unit, and ongoing virtual training support. We also offer preventative maintenance tools for your unit.
Do you offer Financing?
We have unique leasing programs. Please schedule a meeting with us to learn more about our financing and leasing options.
Can we trade in our used mobile unit?
We offer a robust used unit program. Please schedule a call with us to discuss your needs and current used mobile unit.
Get Started with One of Our Expert Sales Associates
When you work with TESCO Specialty Vehicles you know you’re getting proven quality from a trusted dealer. Get started with us today to see why we’re one of the largest dealerships handling new and used specialty vehicle sales in the nation.
















