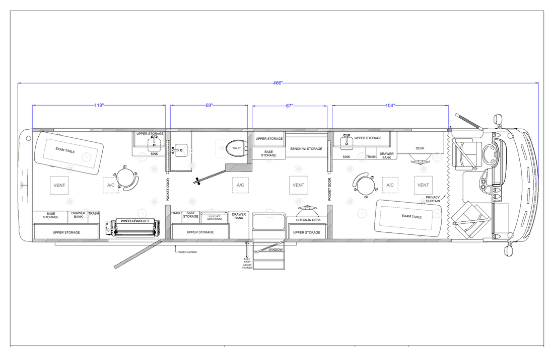
38ft Three Room Mobile Medical Clinic with Wheelchair Lift
Our new 38’ RV clinic is the ideal model for those looking to maximize their space for larger operations. Boasting three large separate rooms, a restroom, and added ceiling height, this Ford F-53 chassis is perfect for conducting multiple exams at once. Key features include wheelchair accessibility, a backup camera system, an 18’ power awning, electric entry steps, and exam room privacy doors, ensuring patient convenience onboard. Built to last, this unit embodies everything one would want in a larger mobile vehicle while staying under the CDL threshold. Constructed on a solid aluminum framework with embedded steel interlocking joints and advanced fiberglass body, this model is unmatched in road durability and safety. If you’re seeking a spacious and accessible vehicle, look no further—this class-leading option has everything you need.
See 360 View
Check Floor Plan
Vehicle Description
Interior Styling
- LZS - Espresso / Driftwood
- Seats - Driver and Passenger - Ultrafabrics
Chassis
- Chassis - Ford F-53
Chassis Features
- 60M Leveling System
- 38A Rear Wheel Valve Stem Extensions - 22.5"
- 240 Trailer Hitch
- Trailer Wiring
- 54W Stylized Aluminum Wheels - Ford 4
General Specifications
- Overall Length = 38' 10"
- Overall Width = 8' 5.5" (101.5")
- Interior Height = 7' 0" (84")
- Interior Width = 8' .5" (96.5")
- Wheelbase = 248" (Ford)
Body Openings
- Battery Compartment - Coach
- Battery Compartment - Chassis
- Underbody Storage Compartments
- 1H2 Entrance Door
- 1E2 Entrance Step - Electric
- Fuel Fill
- Wheel Well
- Curbview Window
- 65G Windows - Single Pane
Body Exterior Trim
- Awning Rail
- Front Bumper
- Rear Bumper
- Front Exterior Finish
- Rear Exterior Finish
- 46V - Exterior Partial Paint
- Miscellaneous Trim
- 935 Mud Flaps
Driver/Passenger Area-General
- Automotive Heater/Air Conditioner
- 808 Front Overhead Cab Storage
- Instrument Panel
- Driver Door Window
- Passenger Window
- 59A Windshield
- Windshield Wipers
Driver/Passenger Conveniences
- Cab Sound Control Package
- 50Y Convenience Tray
- 12L Driver's Cab Entry Door
- 28F Front Shade
- Map Light
- 28X Exterior Mirrors
- Motor Cover
- Power Assist Steering
- 62U Driver and Passenger Seats – Fabric Exchange
- Seats - Driver and Passenger – Black Onyx
- Seat Belts
- 967 Seat Pedestal - Passenger
- 64Q Seat Pedestal - Driver
- Driver Trim Panel
- Passenger Trim Panel
- 1D4 Window Shades
- 1BH In Dash Work Station
Driver/Passenger – Instrumentation & Accessories
- Auxiliary Receptacle(s)
- Auxiliary Start Circuit
- 12V Electrical Supply
- Cruise Control
- 36N Defroster Fans
- Dual Battery Charge Control
- Gauge Cluster
- Headlight Control Switch
- 57M Fog Lamps
- Cell Phone Cradle Mount
- 19R Radio/Rearview Monitor System
- Radio Antenna
- Radio Power Switch
- 571 Radio Speakers
- 74L Video Camera System w/Color Monitor
- Cabinetry
- Cabinet Faces
- 02U Door Style
Interior
- Assist Bar
- Carbon Monoxide Detector/Alarm
- Smoke Detector/Alarm
- Fire Extinguisher
- 1H1 Interior Walls - Fiberglass
Heating/Air Conditioning/Ventilation
- Air Conditioning Duct Paths
- Furnace Ducting System
Electrical - Coach
- 321 Generator Prep Kit
- 22W Battery
- Battery Disconnect System - Chassis
- Battery Disconnect System - Coach
- Exterior Compartment Lights
- Wire Paths in Roof
Windows
- Window - Sidewall - Over 30" 2
- Egress
Wheelchair Lift
- Wheelchair Lift - Braun Platform Century
- Door - Braun Platform Lift
- Clear opening of 46" X 68"
- Interior Material shall be antimicrobial fiberglass
- 12V Exterior Porchlight
Cabinetry
- Laminated Electrical Load Center
- Cabinet - Full Wall (Per Foot)
- Pocket Door
Bathroom
- Half Bathroom (No Shower)
- Swing Door
- Thetford Toilet
- Vanity (Laminated)
- Mirror Over Vanity
- Sink - Single Corian with Lavatory
- Faucet
- Multi Speed Reversible Vent w/Cover
Lighting
- Light - 8" - 12VDC LED Interior Whelen 12
Interior
- Curtain - Cab Area
Floor Covering
- Commercial Vinyl - J38S/J38SE
Water System
- Water System
- Plumbing Drop Locations 3
Heating/Air Conditioning/Ventilation
- Air Conditioner - 15,000 Btu - Coleman
- Mach 8 Roughneck – Ducted 3
- Multi Speed Reversible Vent w/ Cover 3
LP System/Furnace
- Furnace - Webasto Air Top EVO 55
- Floor Mounted Ducts/Registers 3
Electrical - Coach
- Generator - 20kW Gas Open
- Roadside - Generator
- Skid Wheels
- 110/230V Outlet 12
- 50 Amp Service, 80 Amp
- Charger/Converter
- Transfer Switch - Automatic ATS100
- 50 Amp Shore Power Cord – Power Reel
- Blue Sea
- Panduit Surface Raceway Package
Customers have to say:
FAQ
Do we need a Commercial Driver License (CDL) to drive a TESCO Specialty Vehicle?
Our Vehicles do not require a special drivers license. They are designed to be under CDL requirements of a Gross Vehicle Weight Rating of 26,000lbs or less.
Are your vehicles commercial grade?
Our vehicles are NEVER built from retrofitted RV’s which are not designed to hold up to the operational use of medical clinics. Each TESCO Specialty Vehicles is custom built for its commercial application, with steel body construction directly to the chassis. We welcome the opportunity to show you the difference and review with you our manufacturing process.
Where do you ship your vehicles?
We ship our vehicles to every state in the US and have the capabilities to ship internationally.
Do you offer Warranty Coverage?
Yes. Each vehicle comes with a 3 to 5-year warranty for the chassis and body. Please contact us to learn more about our various warranty coverages.
What do I need to consider when starting a mobile unit program?
There are several key strategic areas to consider. At TESCO we offer a free consultation with our Director of Specialty. Our director has a clinical background and years of healthcare service line development, including real life experience with deploying a mobile unit program. We will be able to offer guidance on market research, setting a budget, design, and other strategic operational considerations. Please feel free to schedule appointment here.
How do we power our mobile unit?
Every unit comes with a commercial grade generator and shore power capabilities. Shore power can provide the unit access to power at your parking locations to run your mobile unit electrical systems without use of generator. Please schedule a call with us to learn more about our custom electrical solutions.
What training and support is offered?
We offer onsite training at delivery of your unit, and ongoing virtual training support. We also offer preventative maintenance tools for your unit.
Do you offer Financing?
We have unique leasing programs. Please schedule a meeting with us to learn more about our financing and leasing options.
Can we trade in our used mobile unit?
We offer a robust used unit program. Please schedule a call with us to discuss your needs and current used mobile unit.
Get Started with One of Our Expert Sales Associates
When you work with TESCO Specialty Vehicles you know you’re getting proven quality from a trusted dealer. Get started with us today to see why we’re one of the largest dealerships handling new and used specialty vehicle sales in the nation.































